A 4 bed Detached House in Spoonbill Rise, Bracknell, Berkshire - Offers Over £575,000 - For Sale


Property description

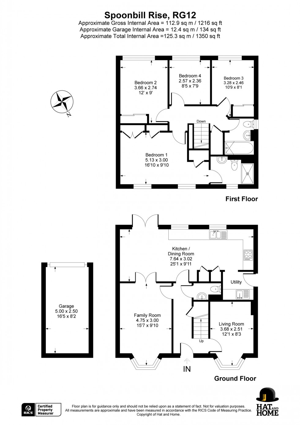
Offering generous proportions and a versatile layout, this four-bedroom home provides spacious accommodation ideal for family living, with a light and airy feel throughout, and is available with no onward chain.

Upon entering, you are welcomed by a spacious entrance hall that sets the tone for the rest of the home. To the front, a bright and versatile reception room provides the perfect space for a home office, playroom, or even an additional bedroom if required. To the rear, the generous kitchen/dining area forms the heart of the home, offering ample space for both everyday family life and entertaining, complemented by a separate utility room for added convenience. A further family room provides flexible living accommodation, ideal as a comfortable lounge or snug, and is enhanced by a bay window overlooking the meadow.

Upstairs, the property boasts four well-proportioned bedrooms. The principal bedroom, positioned at the front, benefits from fitted wardrobes and a private en-suite shower room. The remaining bedrooms are all suitable as doubles and are served by a modern family bathroom, making this an ideal home for growing families or those needing additional space.

Externally, the property features a beautifully relandscaped and private rear garden, thoughtfully designed for low maintenance while still providing an enjoyable outdoor space for relaxing or entertaining. There is also convenient access to the garage from the garden. Parking for multiple vehicles is available directly in front of the garage, offering practical off-street parking.

This attractive home combines a peaceful setting with excellent living space and is ideally located just a few minutes walk from local amenities, well-regarded schools, and open green spaces, making it a superb opportunity within a popular residential location.

Location

Book a viewing

1About You


@

2Pick a Day


  1. This Week
  2. Next Week
  3. In a Fortnight

3Select a Time


Buy

Search for the perfect place to lay your hat.

Read more
Buy

Sell

We'll put you and your property first to get you the best result.

Read more
Sales

Rent

Search for the perfect place to lay your hat.

Read more
Rent

Landlords

Your property is in safe hands with Hat and Home.

Read more
Landlords

About Us

A new kind of estate agent.

Read more
About Us

Team

Meet the faces behind the hats.

Read more
Team

Community

Have a look at how Hat and Home are making a difference.

Read more
Community

Contact

Get in touch to arrange a valuation or viewing.

Contact us
Contact Us