A 4 bed Semi Detached House in Galton Way, Warfield, Bracknell - Offers Over £600,000 - For Sale


Property description

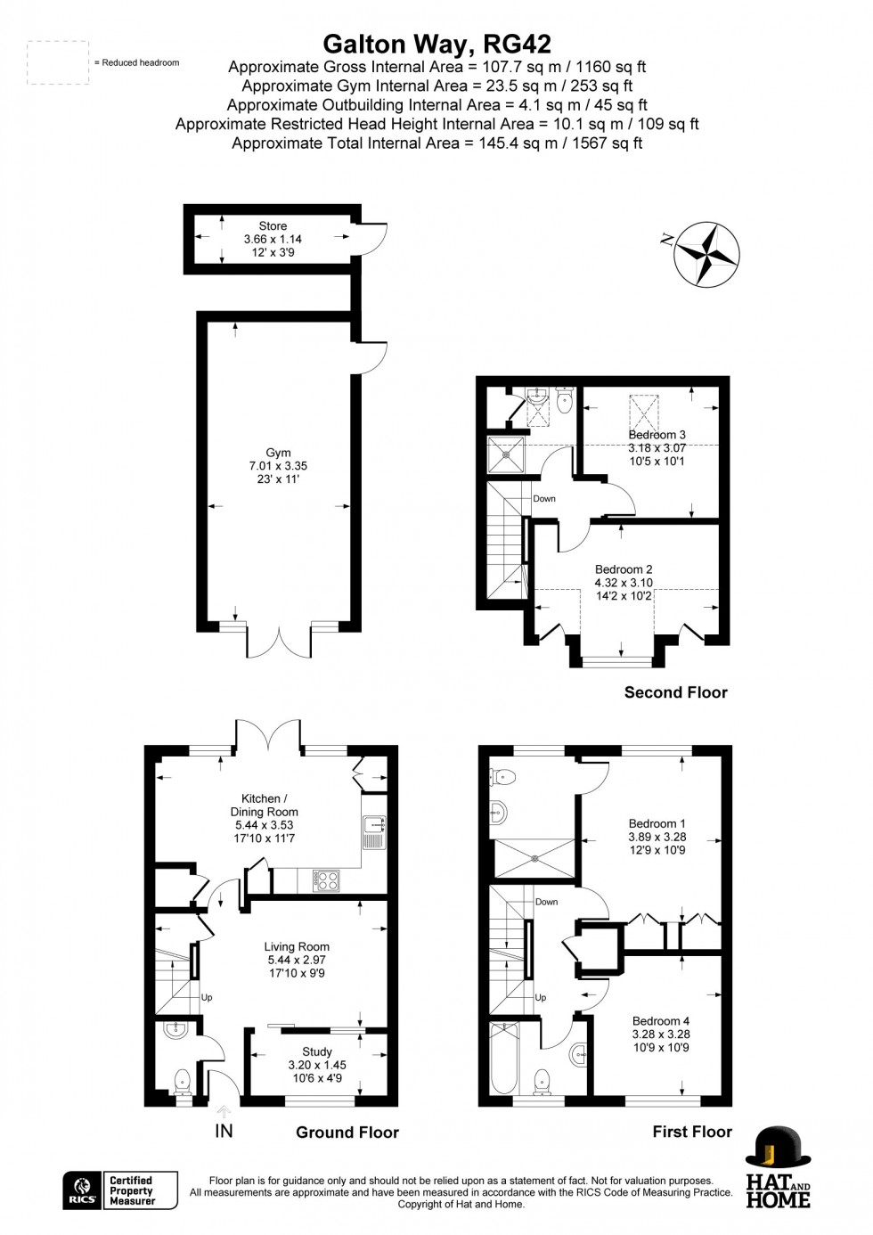
The house offers a contemporary layout downstairs with an open planned living room to the front that is bright and airy with high ceilings. The hallway then follows through to a modern kitchen / dining room that opens out to a landscaped garden. The kitchen comprises a generous amount of storage as well as high-quality fitted appliances including oven, fridge freezer, integrated microwave and dishwasher.

The ground floor has been designed with modern family living in mind by offering extremely well-proportioned space. The current owners have recently re modified this area, by opening up the living room space and adding a separate study.

On the first floor, there are two bedrooms and a generously proportioned family bathroom. The master bedroom benefits from an en-suite, and also provides built-in storage. To the second floor there are two additional well-proportioned bedrooms. This level also benefits from another bathroom.

To the side of the property there is a driveway for several cars as well as a garage. The garage has been recently turned into a home gym, which can easily be converted back into garage space. To the rear of this there is also lockable storage. The property has solar panels likely to offer a favourable pay-out from time to time.

Being situated in the north of Bracknell, Galton Way is on the edge of far-reaching Berkshire countryside, yet just 2 miles from the heart of the town with all of its superb shopping and leisure facilities. Orchids Place offers the very best of both worlds for you and your family. The popular Cabbage Hill is a stone’s throw from the home for walks with furry friends as well as being in a great spot for Warfield Church of England Primary School.

Location

Book a viewing

1About You


@

2Pick a Day


  1. This Week
  2. Next Week
  3. In a Fortnight

3Select a Time


Buy

Search for the perfect place to lay your hat.

Read more
Buy

Sell

We'll put you and your property first to get you the best result.

Read more
Sales

Rent

Search for the perfect place to lay your hat.

Read more
Rent

Landlords

Your property is in safe hands with Hat and Home.

Read more
Landlords

About Us

A new kind of estate agent.

Read more
About Us

Team

Meet the faces behind the hats.

Read more
Team

Community

Have a look at how Hat and Home are making a difference.

Read more
Community

Contact

Get in touch to arrange a valuation or viewing.

Contact us
Contact Us