A 4 bed Detached House in Blackbird Place, Bracknell, Berkshire - Asking Price £625,000 - For Sale


Property description

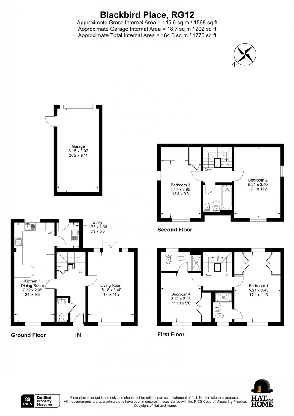
Offering flexible living across three floors, this superbly designed four-bedroom property at Blackbird Place delivers excellent space and comfort for growing families or those looking for a generous modern home. Early viewing is highly recommended to fully appreciate all this wonderful home has to offer.

Upon entering the property, you are greeted by a welcoming hallway leading to a generous living room, perfect for relaxing or entertaining guests. To the rear, the expansive open-plan kitchen and dining features a sleek, modern design with ample workspace and integrated appliances. Adjacent to the kitchen is a convenient utility room and a downstairs WC, enhancing the functionality of this thoughtfully laid-out ground floor.

The first floor hosts two well-sized bedrooms. Bedroom one benefits from two sets of built-in wardrobes and a private en-suite shower room. Bedroom two also offers built in wardrobes and an ensuite shower room.

The second floor comprises two further double bedrooms - both offering generous proportions and plenty of natural light. A third bathroom serves these rooms, providing added convenience for family or guests. Bedroom four has built in mirror wardrobes.

The front garden is laid to lawn with mature hedges and shrubs, whilst the rear garden is a patio of casarta black slate. The rear garden also offers a pergola, fish pond, mature flowing shrub borders with david Austin roses and a sliver birch tree with welcomes shade. It’s the perfect place to relax and enjoy a BBQ.

A key feature of this property is the separate garage offering secure parking or additional storage. The home is set within a well-maintained development with easy access to local amenities, schools, and transport links.

Location

Book a viewing

1About You


@

2Pick a Day


  1. This Week
  2. Next Week
  3. In a Fortnight

3Select a Time


Buy

Search for the perfect place to lay your hat.

Read more
Buy

Sell

We'll put you and your property first to get you the best result.

Read more
Sales

Rent

Search for the perfect place to lay your hat.

Read more
Rent

Landlords

Your property is in safe hands with Hat and Home.

Read more
Landlords

About Us

A new kind of estate agent.

Read more
About Us

Team

Meet the faces behind the hats.

Read more
Team

Community

Have a look at how Hat and Home are making a difference.

Read more
Community

Contact

Get in touch to arrange a valuation or viewing.

Contact us
Contact Us