A 2 bed First Floor Flat in Johnstone Close, Bracknell, Berkshire - Asking Price £250,000 - Under Offer


Property description

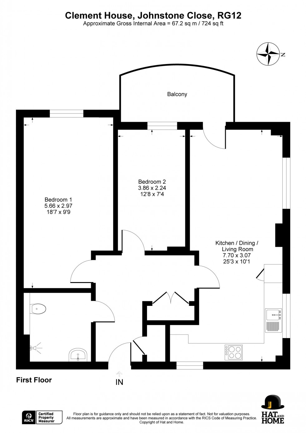
Situated on the first floor of Clement House in the sought-after Johnstone Close, this beautifully presented two-bedroom apartment offers a well-balanced layout ideal for comfortable modern living.

Upon entering the property, you are welcomed by a spacious hallway that leads directly into an open-plan kitchen, dining, and living area. This generous space is perfect for both relaxing and entertaining, featuring large windows that invite plenty of natural light and offer direct access to a private balcony, creating a seamless indoor-outdoor feel.

The apartment offers two well-proportioned bedrooms, with the main bedroom positioned to the rear of the property for added privacy and tranquillity. The second bedroom is versatile and could serve equally well as a guest room or home office. A well-appointed bathroom is conveniently located off the hallway, along with built-in storage that enhances the functionality of the home.

With its thoughtful layout, stylish interior, and desirable location, this apartment represents an excellent opportunity for first-time buyers, downsizers, or investors looking for a low-maintenance home in a well-connected area.

The complex offers a wide range of activities for residents with communal living rooms, has an activities organiser, library, craft rooms, laundry areas, mobility parking, hairdressers, beauty salon, a wraparound garden and many other benefits.

The property is positioned conveniently for access to the new Lexicon shopping and leisure facilities and good access to the neighbouring towns of Wokingham and Ascot whilst the M3/M4 junctions are a short distance away.

Location

Book a viewing

1About You


@

2Pick a Day


  1. This Week
  2. Next Week
  3. In a Fortnight

3Select a Time


Buy

Search for the perfect place to lay your hat.

Read more
Buy

Sell

We'll put you and your property first to get you the best result.

Read more
Sales

Rent

Search for the perfect place to lay your hat.

Read more
Rent

Landlords

Your property is in safe hands with Hat and Home.

Read more
Landlords

About Us

A new kind of estate agent.

Read more
About Us

Team

Meet the faces behind the hats.

Read more
Team

Community

Have a look at how Hat and Home are making a difference.

Read more
Community

Contact

Get in touch to arrange a valuation or viewing.

Contact us
Contact Us