A 3 bed Semi Detached House in Staplehurst, Bracknell, Berkshire - Offers In Excess Of £485,000 - For Sale


Property description

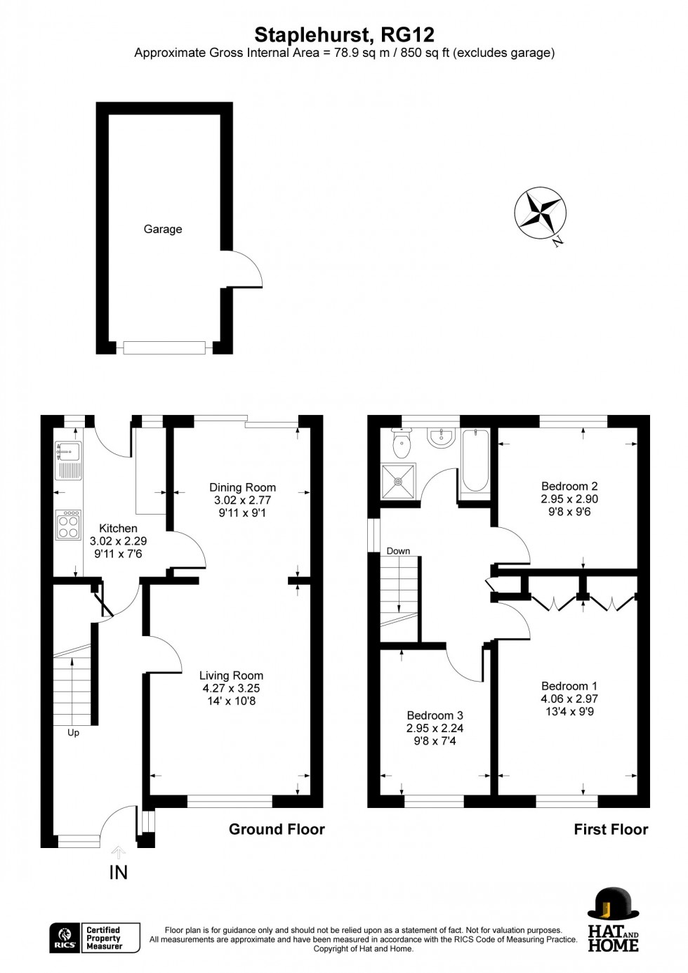
The property is set within a quiet cul de sac. Upon entering, you are greeted by a bright and inviting hallway that provides access to the main living areas. The ground floor accommodation flows well, offering a generous reception space that is ideal for both relaxing and entertaining.

The kitchen is thoughtfully laid out with practicality in mind, offering ample storage and workspace. It functions as a central hub of the home, with a dining area adjacent too. The layout allows for an enjoyable cooking environment while maintaining a connection to the rest of the home.

To the first floor, the property features three well-proportioned bedrooms, each offering flexibility for family living, guests, or home working. These rooms are complemented by a newly refurbished family bathroom, conveniently located upstairs and serving all bedrooms.

Outside, the rear garden provides a private and peaceful space, ideal for outdoor dining, entertaining, or simply enjoying the surroundings. The property comes with a garage and driveway parking for several cars.

Staplehurst is a sought-after location within Wooden Hill, valued for its community feel and convenient access to local amenities. The village offers a range of shops, schools, and leisure facilities, along with a mainline railway station providing direct services to London.

Location

Book a viewing

1About You


@

2Pick a Day


  1. This Week
  2. Next Week
  3. In a Fortnight

3Select a Time


Buy

Search for the perfect place to lay your hat.

Read more
Buy

Sell

We'll put you and your property first to get you the best result.

Read more
Sales

Rent

Search for the perfect place to lay your hat.

Read more
Rent

Landlords

Your property is in safe hands with Hat and Home.

Read more
Landlords

About Us

A new kind of estate agent.

Read more
About Us

Team

Meet the faces behind the hats.

Read more
Team

Community

Have a look at how Hat and Home are making a difference.

Read more
Community

Contact

Get in touch to arrange a valuation or viewing.

Contact us
Contact Us