A 2 bed Maisonette in Wiltshire Drive, Wokingham, Berkshire - Asking Price £335,000 - Under Offer


Property description

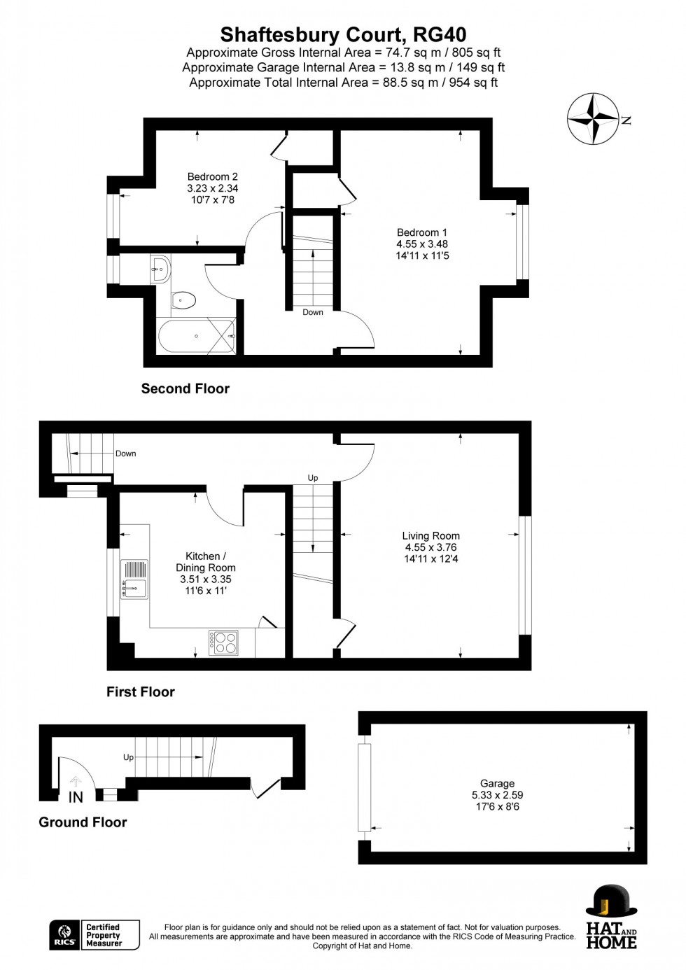
Tucked away in a peaceful location near Wokingham town centre, this spacious two-bedroom duplex maisonette offers an excellent blend of convenience, comfort, and space. Boasting a generous layout across two floors, this well-proportioned home provides an ideal living space for professionals, downsizers, or first-time buyers seeking a quiet retreat with easy access to the town’s vibrant and plentiful amenities.

The first floor features a bright and airy living room, perfect for relaxation and entertaining, alongside a well-appointed kitchen and dining area. Upstairs, two well-sized bedrooms provide comfortable accommodation, complemented by a spacious shared bathroom. The property benefits from its own private entrance, adding to the sense of independant living.

A rare advantage is the private garage, offering secure parking and additional storage space—an invaluable feature so close to the town centre as well as beautifully kept communal gardens. Wokingham itself is renowned for its charming market town atmosphere, excellent shopping, dining options, and outstanding transport links, including direct train services to London and easy access to the M4.

With its fantastic location, spacious layout, and quiet setting, this maisonette presents a unique opportunity to enjoy the best of Wokingham living while benefiting from quiet and comfortable home.

Location

Book a viewing

1About You


@

2Pick a Day


  1. This Week
  2. Next Week
  3. In a Fortnight

3Select a Time


Buy

Search for the perfect place to lay your hat.

Read more
Buy

Sell

We'll put you and your property first to get you the best result.

Read more
Sales

Rent

Search for the perfect place to lay your hat.

Read more
Rent

Landlords

Your property is in safe hands with Hat and Home.

Read more
Landlords

About Us

A new kind of estate agent.

Read more
About Us

Team

Meet the faces behind the hats.

Read more
Team

Community

Have a look at how Hat and Home are making a difference.

Read more
Community

Contact

Get in touch to arrange a valuation or viewing.

Contact us
Contact Us