A 3 bed House in Outfield Crescent, Wokingham, Berkshire - Asking Price £535,000 - For Sale


Property description

This beautifully presented three-bedroom, three-bathroom townhouse is ideally positioned in the heart of Wokingham, offering an exceptional blend of modern living, convenience, and lifestyle appeal. Perfectly placed equidistant between the vibrant town centre and the mainline railway station, this home is a standout choice for commuters and those seeking the very best of town centre living.

Set within one of Berkshire’s most desirable and historic market towns, Wokingham is renowned for its charming pedestrianised centre, weekly markets, independent boutiques, stylish cafés, and an ever-growing selection of restaurants and bars. Life here offers a genuine “walk everywhere” lifestyle, where everything you need is just moments from your door. From morning coffee in a local café to evening dining or a relaxed drink in one of the town’s welcoming pubs, the lifestyle is both convenient and effortlessly social.

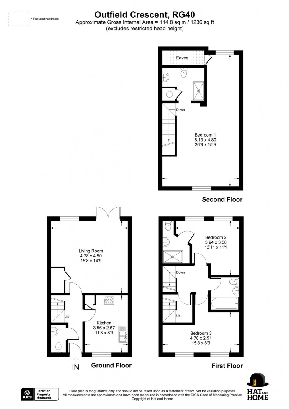
Inside, the property offers well-balanced and versatile accommodation across three floors, with three generously sized bedrooms and three contemporary bathrooms, making it ideal for families, professionals, or those needing flexible guest space. The layout has been thoughtfully designed for modern living, with bright interiors and a practical flow throughout.

Externally, the home benefits from two allocated parking spaces a rare and highly sought-after feature so close to the town centre, as well as a private rear garden, providing a peaceful outdoor retreat for entertaining, relaxing, or family use.

Offered with no onward chain, this is a smooth and straightforward purchase opportunity, ideal for buyers looking to move quickly.

A rare opportunity to secure a modern townhouse in such a prime central Wokingham location, combining excellent transport links, a thriving town centre lifestyle, and comfortable, low-maintenance living in one of the area’s most desirable settings.

Location

Book a viewing

1About You


@

2Pick a Day


  1. This Week
  2. Next Week
  3. In a Fortnight

3Select a Time


Buy

Search for the perfect place to lay your hat.

Read more
Buy

Sell

We'll put you and your property first to get you the best result.

Read more
Sales

Rent

Search for the perfect place to lay your hat.

Read more
Rent

Landlords

Your property is in safe hands with Hat and Home.

Read more
Landlords

About Us

A new kind of estate agent.

Read more
About Us

Team

Meet the faces behind the hats.

Read more
Team

Community

Have a look at how Hat and Home are making a difference.

Read more
Community

Contact

Get in touch to arrange a valuation or viewing.

Contact us
Contact Us