A 2 bed Flat in Lovel Road, Winkfield, Windsor - Offers Over £630,000 - For Sale


Property description

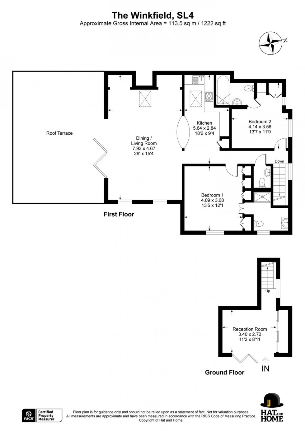
Upon entering, you are greeted by a private entrance and a charming courtyard-style garden, creating a sense of space and tranquility. The ground floor living room offers a warm and inviting area to relax or entertain, with stylish finishes throughout.

Upstairs, you’ll find two generously sized double bedrooms, each boasting a luxurious en-suite bathroom, ensuring privacy and comfort for residents and guests alike. A separate cloakroom adds further convenience.

The heart of the home is its expansive kitchen and dining area, designed for modern living. With bi-fold doors opening onto a large private roof terrace, there is ideal space for al fresco dining and entertaining while enjoying breathtaking panoramic views towards Ascot racecourse.

A unique property combining indoor and outdoor living at its finest which must be viewed to be fully appreciated.

Located in the highly desirable Winkfield the property is only three miles away from Ascot High Street and its range of useful amenities, shops and cultural attractions. From Ascot, London Waterloo can be reached by direct train in under an hour, while Heathrow International Airport is also just a short journey away. The M3, M4 and M25 motorways are within easy reach, providing convenient links to the national motorway network.

Location

Book a viewing

1About You


@

2Pick a Day


  1. This Week
  2. Next Week
  3. In a Fortnight

3Select a Time


Buy

Search for the perfect place to lay your hat.

Read more
Buy

Sell

We'll put you and your property first to get you the best result.

Read more
Sales

Rent

Search for the perfect place to lay your hat.

Read more
Rent

Landlords

Your property is in safe hands with Hat and Home.

Read more
Landlords

About Us

A new kind of estate agent.

Read more
About Us

Team

Meet the faces behind the hats.

Read more
Team

Community

Have a look at how Hat and Home are making a difference.

Read more
Community

Contact

Get in touch to arrange a valuation or viewing.

Contact us
Contact Us