A 4 bed Detached House in Holmbury Avenue, Crowthorne, Berkshire - Asking Price £900,000 - Under Offer


Property description

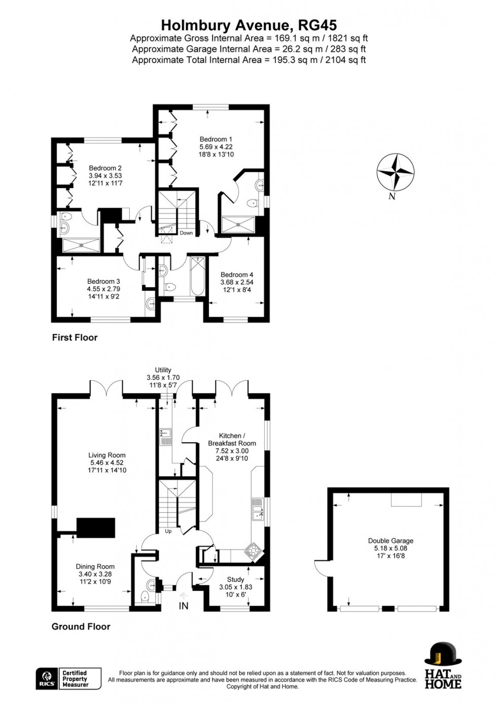
Situated in a private position at the very end of Holmbury Avenue on the highly regarded Pine Ridge development, this impressive four bedroom detached family home offers over 2,100 sq ft of well-balanced accommodation and enjoys a particularly attractive frontage with ample driveway parking.

The property has been thoughtfully improved by the current owner and is presented in excellent condition throughout. Internally, the ground floor offers generous and versatile living space, including a bright living room, separate dining room and a modernised kitchen/breakfast room with direct access to the garden. A separate utility room adds practicality, while a dedicated study provides the ideal space for those working from home. A downstairs cloakroom completes the ground floor accommodation.

Upstairs, the first floor comprises four well-proportioned bedrooms. Both the principle and bedroom two benefit from their own en suites, while the remaining bedrooms are served by a refitted family bathroom. The owner has upgraded the kitchen and bath/shower rooms, alongside redecoration throughout and the addition of spotlights, creating a contemporary yet comfortable feel.

Externally, the home enjoys a fantastic sense of privacy, set back at the end of the avenue with woodland surroundings. The driveway provides ample off-street parking and leads to a detached double garage, offering further storage or parking options.

The Pine Ridge development is renowned for its peaceful environment and proximity to nature. Heath Lake is just a short walk away, ideal for dog walkers or scenic strolls, while Bigshotte Park is conveniently located at the end of the road. The property also benefits from easy access to the highly regarded Hatch Ride Primary School, making it a superb choice for families.

This is a rare opportunity to acquire a substantial detached home in a quiet, tucked-away position within one of Crowthorne’s most desirable residential developments.

Location

Book a viewing

1About You


@

2Pick a Day


  1. This Week
  2. Next Week
  3. In a Fortnight

3Select a Time


Buy

Search for the perfect place to lay your hat.

Read more
Buy

Sell

We'll put you and your property first to get you the best result.

Read more
Sales

Rent

Search for the perfect place to lay your hat.

Read more
Rent

Landlords

Your property is in safe hands with Hat and Home.

Read more
Landlords

About Us

A new kind of estate agent.

Read more
About Us

Team

Meet the faces behind the hats.

Read more
Team

Community

Have a look at how Hat and Home are making a difference.

Read more
Community

Contact

Get in touch to arrange a valuation or viewing.

Contact us
Contact Us