A 4 bed Detached House in Wellington Road, Sandhurst, Berkshire - Asking Price £925,000 - For Sale


Property description

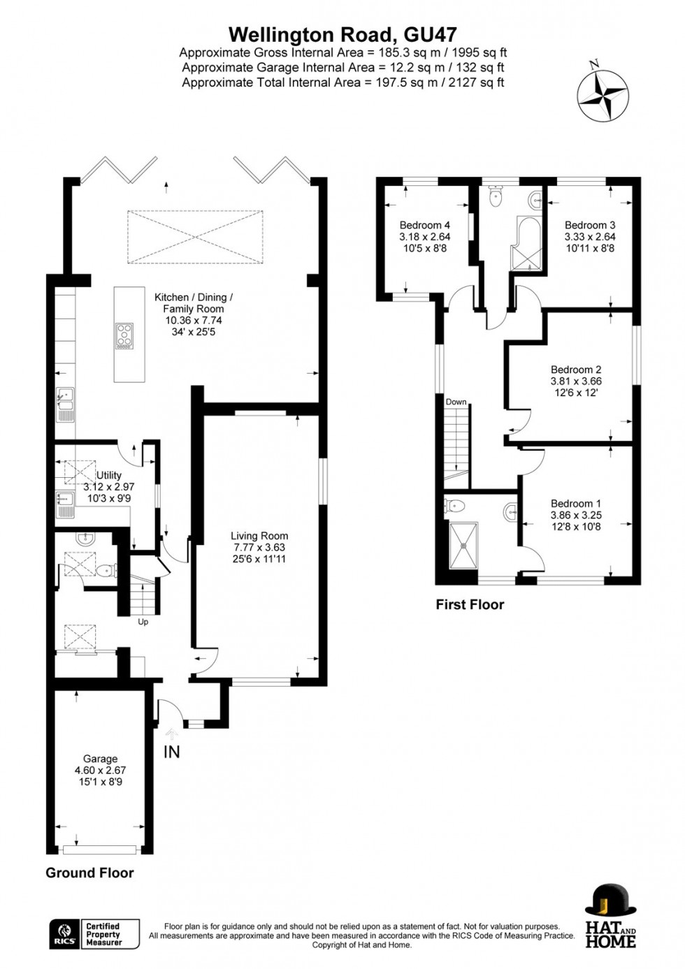
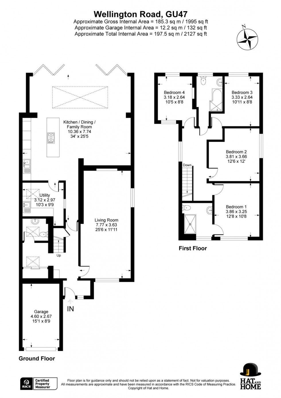
This impressive four-bedroom detached home on Wellington Road has been thoughtfully and extensively extended over the years, creating a beautifully balanced family home that blends modern open-plan living with versatile spaces for relaxation and entertaining.

To the front of the property, a smart porch and garage extension provide a welcoming entrance and practical storage. The ground floor has been transformed with a single storey side extension featuring a vaulted ceiling, a two storey rear and side extension, and a large single storey rear addition boasting a lantern skylight and wide bi-folding doors opening onto the garden.

The heart of the home is the open-plan kitchen/dining/family room - a bright and spacious area ideal for entertaining and family life. The kitchen features a large central island, modern fittings, and flows seamlessly into the dining and living space. A separate utility room offers additional practicality, while a front living room provides a cosy retreat.

Upstairs, there are four well-proportioned bedrooms and two updated bath/shower rooms, offering comfort and flexibility for families of all sizes.

The home sits on a 0.14-acre plot and outside, there is a generous, tree-lined rear garden offering excellent privacy and plenty of space for outdoor enjoyment. The front driveway provides ample parking for several vehicles.

Perfectly located for family life, the property is just a short walk from Uplands Primary School, local shops on Yorktown Road, Thibet Woods, and Sandhurst Memorial Park. There’s also a nearby cut-through to Snaprails Park, giving easy access to Sandhurst School.

Location

Book a viewing

1About You


@

2Pick a Day


  1. This Week
  2. Next Week
  3. In a Fortnight

3Select a Time


Buy

Search for the perfect place to lay your hat.

Read more
Buy

Sell

We'll put you and your property first to get you the best result.

Read more
Sales

Rent

Search for the perfect place to lay your hat.

Read more
Rent

Landlords

Your property is in safe hands with Hat and Home.

Read more
Landlords

About Us

A new kind of estate agent.

Read more
About Us

Team

Meet the faces behind the hats.

Read more
Team

Community

Have a look at how Hat and Home are making a difference.

Read more
Community

Contact

Get in touch to arrange a valuation or viewing.

Contact us
Contact Us